RESIDENTIAL
SUBDIVISIONS

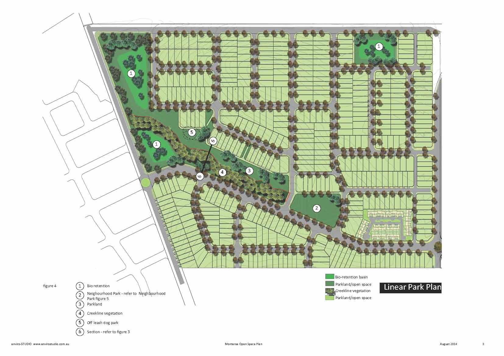
Landscape drawings for residential subdivisions require street trees plans that meet council requirements, circulation pathways, retention of existing vegetation, playgrounds. access for maintenance to pathways and stormwater infrastructure etc. Envirostudio's experience enables us to provide the informatin that the various councils require balanced with being able to produce the information with the minimal hours to provide encompassing plans for a optimum fee


ph: 0424 492 921

email office@envirostudio.com.au ABN 92 962 921 203